
solgt



solgt
Hadsund Landevej 463, Lundby, 9260 Gistrup
SOLGT PÅ 3 MÅNEDER - LIGNENDE BOLIG SØGES AF KØBERE I MIT KØBERKARTOTEK
Prisvenlig villa med dejlig udsigt og tæt på det nye sygehus
Denne ejendom er et rigtig fornuftigt bud på dit nye hjem, hvis du er på udkig efter en bolig i grønne
rammer uden for byen – uden på nogen måde at være for langt fra den. Standen og indretningen fungerer
lige fra første indflytningsdag, og her er samtidig også råderum til at foretage forskellige justeringer og
opdateringer alt efter behov.
Ejendommen ligger bogstaveligt talt med indkørsel lige dér, hvor cykelstien ind til Gistrup starter. De få
kilometer ind til skole, indkøbsmuligheder og idrætsfaciliteter og til det nye sygehus kan således
tilbagelægges ganske trygt, og turen går endda gennem de smukke rammer i Lundby Krat. Se den nye
præsentationsvideo om Gistrup By: https://youtu.be/cmxQ5fW6xgk
Hjemme på selve matriklen er der også en dejlig, landlig udsigt, der byder på masser af grønt for øjnene.
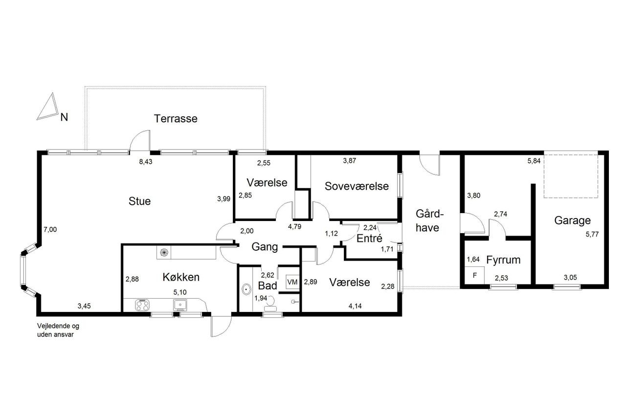
Selve huset byder indretningsmæssigt på et spisekøkken og en rummelig vinkelstue med karnap og
terrasse udgang. Dertil kommer tre værelser med indbyggede skabe samt et brusebadeværelse. I
garagen er der fyrrum og plads til værksted eller hobbyaktiviteter.
En spændende villa med masser af muligheder for eks. førstegangskøberen.
Ring for fremvisning i dag på tlf. 6115 1513
Coronavirussen skal tages alvorligt, og jeg følger myndighedernes anvisninger, og for at minimere
risikoen for smitte med coronavirus har jeg valgt at tage nye metoder i brug:
- Åbent hus arrangementer foregår nu som 1 - 1 fremvisninger, hvor man tilmelder sig 1 hold af gangen
- Jeg har håndsprit med til alle fremvisninger og åbne huse
- Jeg undlader at give hånd og holder god afstand
- Jeg er klar til at hjælpe både på telefon, mail, og videomøder / facetime
Prisvenlig villa med dejlig udsigt og tæt på det nye sygehus
Denne ejendom er et rigtig fornuftigt bud på dit nye hjem, hvis du er på udkig efter en bolig i grønne
rammer uden for byen – uden på nogen måde at være for langt fra den. Standen og indretningen fungerer
lige fra første indflytningsdag, og her er samtidig også råderum til at foretage forskellige justeringer og
opdateringer alt efter behov.
Ejendommen ligger bogstaveligt talt med indkørsel lige dér, hvor cykelstien ind til Gistrup starter. De få
kilometer ind til skole, indkøbsmuligheder og idrætsfaciliteter og til det nye sygehus kan således
tilbagelægges ganske trygt, og turen går endda gennem de smukke rammer i Lundby Krat. Se den nye
præsentationsvideo om Gistrup By: https://youtu.be/cmxQ5fW6xgk
Hjemme på selve matriklen er der også en dejlig, landlig udsigt, der byder på masser af grønt for øjnene.
Selve huset byder indretningsmæssigt på et spisekøkken og en rummelig vinkelstue med karnap og
terrasse udgang. Dertil kommer tre værelser med indbyggede skabe samt et brusebadeværelse. I
garagen er der fyrrum og plads til værksted eller hobbyaktiviteter.
En spændende villa med masser af muligheder for eks. førstegangskøberen.
Ring for fremvisning i dag på tlf. 6115 1513
Coronavirussen skal tages alvorligt, og jeg følger myndighedernes anvisninger, og for at minimere
risikoen for smitte med coronavirus har jeg valgt at tage nye metoder i brug:
- Åbent hus arrangementer foregår nu som 1 - 1 fremvisninger, hvor man tilmelder sig 1 hold af gangen
- Jeg har håndsprit med til alle fremvisninger og åbne huse
- Jeg undlader at give hånd og holder god afstand
- Jeg er klar til at hjælpe både på telefon, mail, og videomøder / facetime
Torben Svendsen
Ejendomsmægler, MDE og Indehaver
Skriv dig op i mit køberkartotek
Så finder vi sammen den rigtige vej til dit nye hjem.



